Appartement T4 Craponne Centre - le coin des annonces immobilières sur MonLogementNeuf.com

Appartement T4 Craponne Centre - 485 000€*

Annonce parue le : 09-10-2023

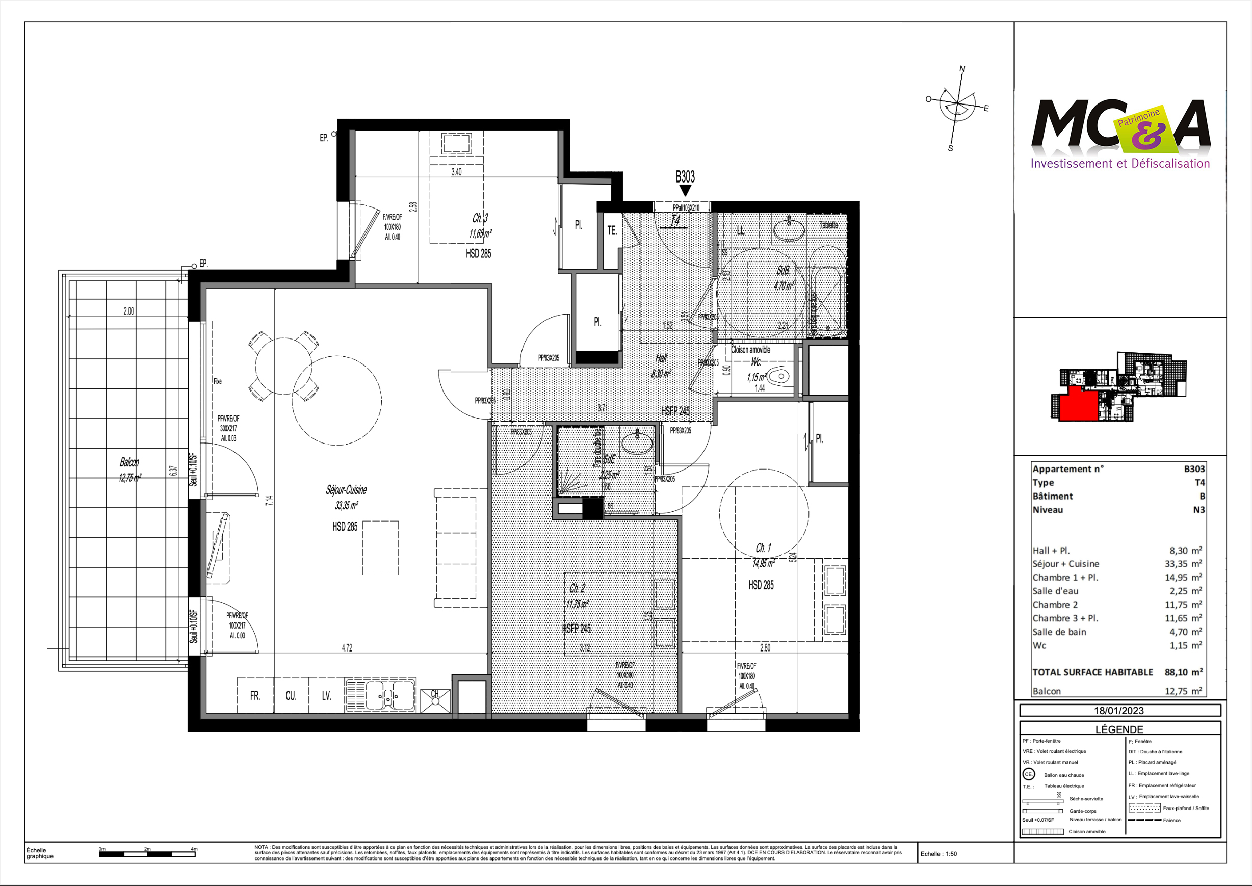
MC&A Patrimoine vous propose à Craponne centre, proche de la place centrale, à proximité des commerces, du marché et du centre culturel, situé au 3ème et dernier étage de cette résidence, superbe T4 de 88 m² se compose d'une entrée avec vestiaire, une salle de bain avec baignoire, meuble sous vasque et sèche serviette, de trois chambres dont une suite parentale avec salle d'eau, wc séparés et une lumineuse pièce de vie avec cuisine US de 33 m² orienté Ouest et ouverte sur le balcon de 12 m² donnant sur les jardins de la copropriété. Garage double en sous-sol fermé inclus. Contactez Archange BARLET.

Ville :
Craponne

Appartement
Craponne - CENTRE VILLE

485 000€*
  • Etage : 3
  • Nombre de pièce(s) : 4 pièce(s)
  • Surface : 88 m²
  • Balcon/Terrasse/Jardin : 12 m²

Le secteur

Diagnostic énergétique

Très économe
Ce logement
≤50A
51 à 90B
91 à 150C
151 à 230D
231 à 330E
331 à 450F
451 à 590G
591 à 750H
>751I
B
kWh/m2.an
Très énergivore
 
Faible émission des GES
Ce logement
≤5A
6 à 10B
11 à 20C
21 à 35D
36 à 55E
56 à 80F
81 à 110G
111 à 145H
>145I
B
KgeqCO2/m2.an
Forte émission des GES
 
*Prix TTC donnés à titre indicatif

Demande d'information sur l'annonce

Je souhaite être recontacté à propos de l'annonce ARCHANGE_57178

Informations complémentaires (indiquez ici vos disponibilités)

Les informations recueillies à partir de ce formulaire sont transmises par email à nos conseillers qui utiliseront ces données pour vous recontacter dans le cadre de votre demande. Les champs obligatoires sont signalés par des *. Vous disposez d’un droit d’accès, de rectification et d’opposition aux données vous concernant que vous pouvez exercer en nous contactant par courrier à : MC&A 1 chemin du Torey 69340 Francheville. Politique de protection des données personnelles