Appartement T4 Viry Centre - le coin des annonces immobilières sur MonLogementNeuf.com

Appartement T4 Viry Centre - 501 900€*

Annonce parue le : 09-10-2023

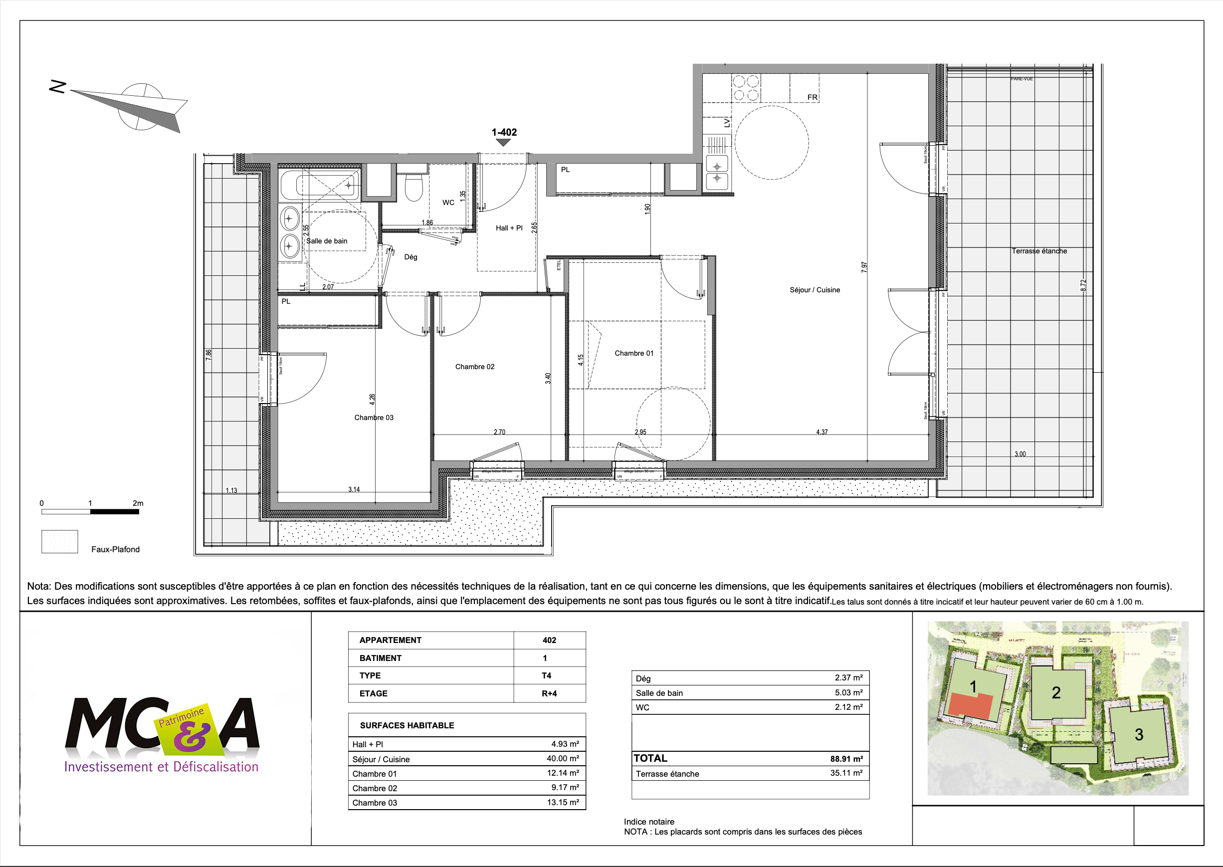
Viry centre à moins de 5 minutes à pied des commerces et de la Mairie, dans une résidence construite aux normes normes d'isolations thermique, superbe T4 de 89 m² avec grande terrasse. Situé au 4ème étage, ce très bel appartement est composé d'une entrée avec un grand placard, de 3 chambres dont une avec sa propre terrasse, une salle de bains avec baignoire et double vasque, wc séparés et une lumineuse pièce de vie avec cuisine US ouverte sur la terrasse principale de 26 m² orienté plein sud. Appartement lumineux et bien pensé, bénéficiant d'un garage box et une place de parking en sous-sol. Secteur Géographique porteur avec sa proximité de la frontière Suisse et à 20 minutes du centre de Genève. Contactez Archange BARLET.

Ville :
Viry

Appartement
Viry - Centre-ville

501 900€*
  • Etage : 4
  • Nombre de pièce(s) : 4 pièce(s)
  • Surface : 88.91 m²
  • Balcon/Terrasse/Jardin : 35 m²

Le secteur

Diagnostic énergétique

Très économe
Ce logement
≤50A
51 à 90B
91 à 150C
151 à 230D
231 à 330E
331 à 450F
451 à 590G
591 à 750H
>751I
B
kWh/m2.an
Très énergivore
 
Faible émission des GES
Ce logement
≤5A
6 à 10B
11 à 20C
21 à 35D
36 à 55E
56 à 80F
81 à 110G
111 à 145H
>145I
B
KgeqCO2/m2.an
Forte émission des GES
 
*Prix TTC donnés à titre indicatif

Demande d'information sur l'annonce

Je souhaite être recontacté à propos de l'annonce ARCHANGE_51601

Informations complémentaires (indiquez ici vos disponibilités)

Les informations recueillies à partir de ce formulaire sont transmises par email à nos conseillers qui utiliseront ces données pour vous recontacter dans le cadre de votre demande. Les champs obligatoires sont signalés par des *. Vous disposez d’un droit d’accès, de rectification et d’opposition aux données vous concernant que vous pouvez exercer en nous contactant par courrier à : MC&A 1 chemin du Torey 69340 Francheville. Politique de protection des données personnelles