Exceptionnel T1 de 35m² - le coin des annonces immobilières sur MonLogementNeuf.com

Exceptionnel T1 de 35m² - 200 000€*

Annonce parue le : 28-06-2023

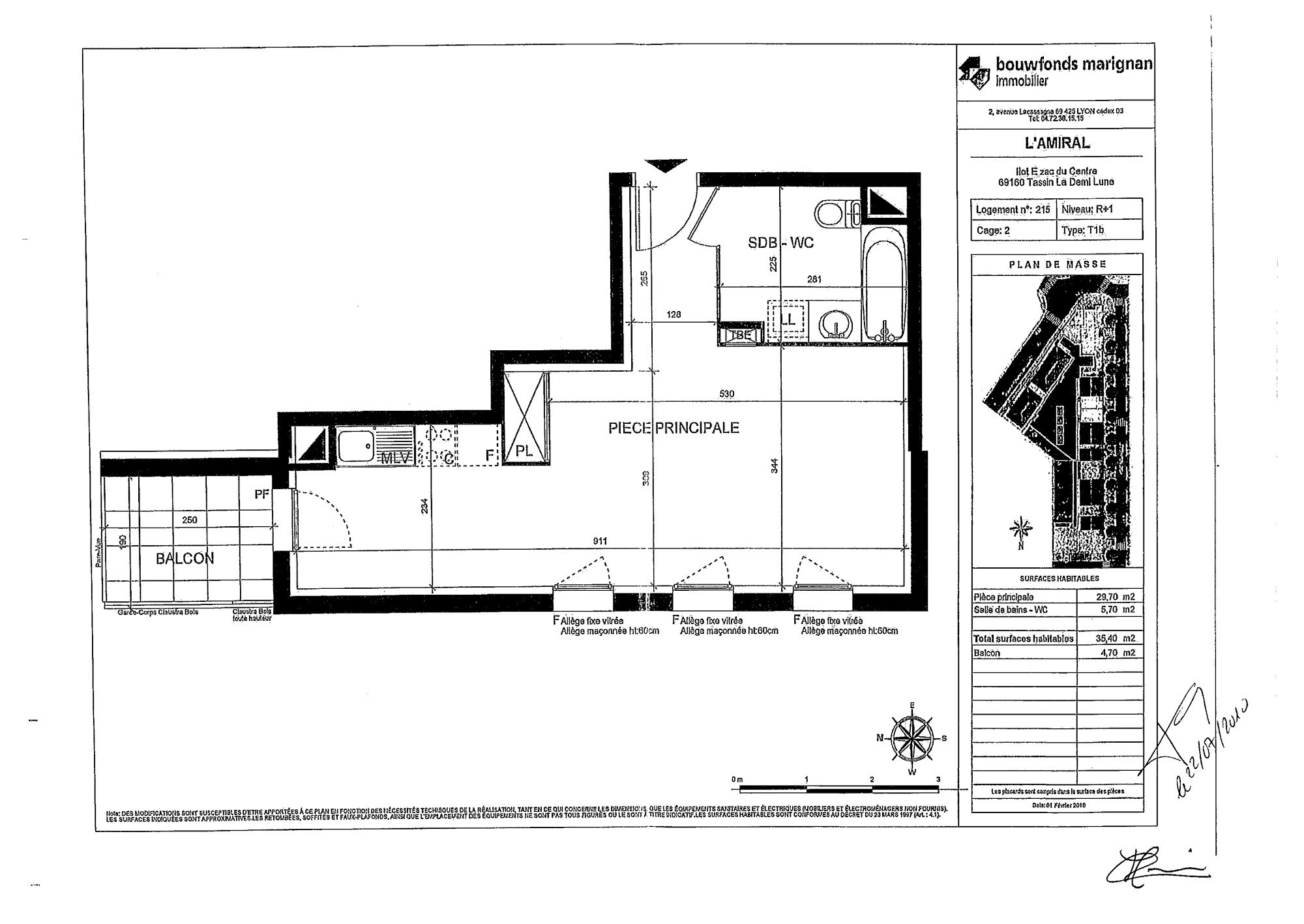
Exceptionnel! En plein cœur de Tassin la Demi Lune et à 2 pas de l'horloge Venez visiter ce magnifique T1 de 35m² située dans une résidence calme et sécurisée. Il se compose d'une belle pièce de vie lumineuse de 30 m² avec un coin cuisine prolongé par un balcon de 4.70m² et d'une salle de bain avec WC. Garage fermé en sous sol en SUS 15 000 € Emplacement idéal de par la proximité immédiate des transports en commun, des commerces, marchés. Gros points fort : idéal investisseur secteur non soumis à l'encadrement des loyers, résidence récente, situation géographique idéal DPE en cours ( chauffage collectif au gaz )

Appartement
Tassin la Demi Lune -

200 000€*
  • Etage :
  • Nombre de pièce(s) : 1 pièce(s)
  • Surface : 35.4 m²
  • Balcon/Terrasse/Jardin : 5 m²

Le secteur

Diagnostic énergétique

Très économe
Ce logement
≤50A
51 à 90B
91 à 150C
151 à 230D
231 à 330E
331 à 450F
451 à 590G
591 à 750H
>751I
B
kWh/m2.an
Très énergivore
 
Faible émission des GES
Ce logement
≤5A
6 à 10B
11 à 20C
21 à 35D
36 à 55E
56 à 80F
81 à 110G
111 à 145H
>145I
B
KgeqCO2/m2.an
Forte émission des GES
 
*Prix TTC donnés à titre indicatif

Demande d'information sur l'annonce

Je souhaite être recontacté à propos de l'annonce VALERIE_57325

Informations complémentaires (indiquez ici vos disponibilités)

Les informations recueillies à partir de ce formulaire sont transmises par email à nos conseillers qui utiliseront ces données pour vous recontacter dans le cadre de votre demande. Les champs obligatoires sont signalés par des *. Vous disposez d’un droit d’accès, de rectification et d’opposition aux données vous concernant que vous pouvez exercer en nous contactant par courrier à : MC&A 1 chemin du Torey 69340 Francheville. Politique de protection des données personnelles