Exceptionnel T2 Neuf de 45m² - le coin des annonces immobilières sur MonLogementNeuf.com

Exceptionnel T2 Neuf de 45m² - 195 000€*

Annonce parue le : 13-07-2023

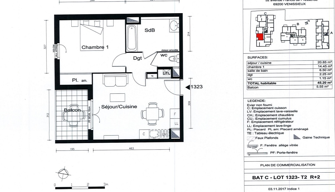
Exceptionnel ! Résidence de 2020 sécurisée. Venez découvrir ce superbe T2 de 45 m² au 2ème étage. Lorsque vous passerez la porte vous pourrez découvrir un séjour/cuisine équipée (meubles, plaque et hotte) d'une superficie de 21m² prolongé par un balcon de 6m², un dégagement, une belle chambre avec placard équipé de 14.45 m², une salle de bain et un WC séparé. Le bien se complète d’un garage fermé en sous sol. Emplacement idéal de par la proximité immédiate des transports en communs (bus, TRAM), école, commerces, périphérique… Gros point fort : appartement lumineux, au calme, pas de travaux, résidence de 2020, sa situation géographique

Ville :
Venissieux

Appartement
Venissieux - Moulin à Vent

195 000€*
  • Etage : 2
  • Nombre de pièce(s) : 2 pièce(s)
  • Surface : 45.2 m²
  • Balcon/Terrasse/Jardin : 6 m²

Le secteur

Diagnostic énergétique

Très économe
Ce logement
≤50A
51 à 90B
91 à 150C
151 à 230D
231 à 330E
331 à 450F
451 à 590G
591 à 750H
>751I
B
kWh/m2.an
Très énergivore
 
Faible émission des GES
Ce logement
≤5A
6 à 10B
11 à 20C
21 à 35D
36 à 55E
56 à 80F
81 à 110G
111 à 145H
>145I
B
KgeqCO2/m2.an
Forte émission des GES
 
*Prix TTC donnés à titre indicatif

Demande d'information sur l'annonce

Je souhaite être recontacté à propos de l'annonce VALERIE_19168

Informations complémentaires (indiquez ici vos disponibilités)

Les informations recueillies à partir de ce formulaire sont transmises par email à nos conseillers qui utiliseront ces données pour vous recontacter dans le cadre de votre demande. Les champs obligatoires sont signalés par des *. Vous disposez d’un droit d’accès, de rectification et d’opposition aux données vous concernant que vous pouvez exercer en nous contactant par courrier à : MC&A 1 chemin du Torey 69340 Francheville. Politique de protection des données personnelles