Nice Carré d'Or Appartement T3 avec terrasse - le coin des annonces immobilières sur MonLogementNeuf.com

Nice Carré d'Or Appartement T3 avec terrasse - 859 000€*

Annonce parue le : 09-10-2023

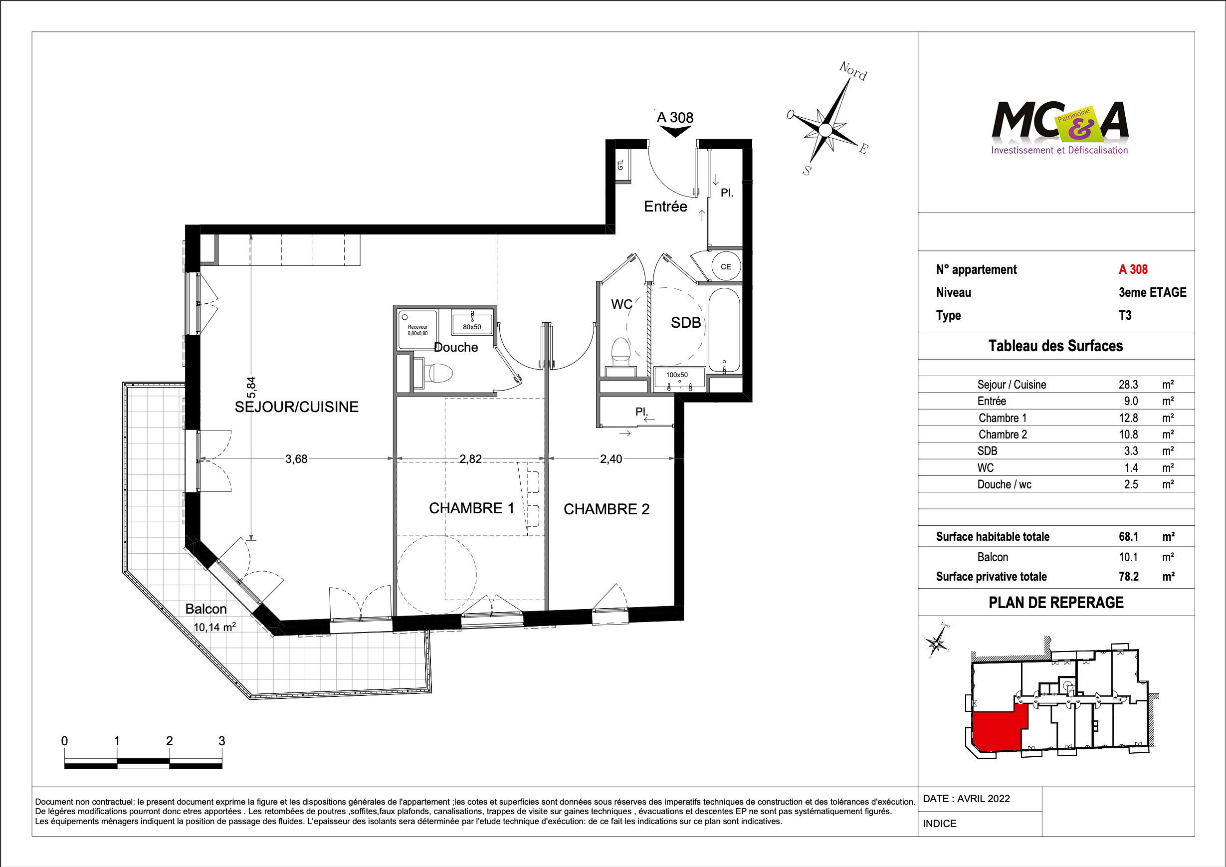
Nice, dans le très prisé Carré d'Or, situé au 3ème étage et orienté Sud Ouest, superbe T3 de 68 m² à deux pas de la place Massena et des plages. L'appartement se compose d'une entrée avec placard, une Salle d'eau principale et Wc séparés, deux belles chambres dont une avec salle de douche et Wc. Une lumineuse pièce de vie de 28 m² avec quatre ouvertures sur la terrasse de 10 m² orienté Sud Ouest rajoute un caractère d'exception à cet appartement. Belles prestations, Ascenseurs, Carrelage 60x60, faïence toute hauteur dans la salle d'eau, menuiseries bois avec persiennes traditionnelle. RT 2012 BBC Contactez Archange BARLET.

Ville :
Nice

Appartement
Nice - Carré d'Or

859 000€*
  • Etage : 3
  • Nombre de pièce(s) : 3 pièce(s)
  • Surface : 68 m²
  • Balcon/Terrasse/Jardin : 10 m²

Le secteur

Diagnostic énergétique

Très économe
Ce logement
≤50A
51 à 90B
91 à 150C
151 à 230D
231 à 330E
331 à 450F
451 à 590G
591 à 750H
>751I
B
kWh/m2.an
Très énergivore
 
Faible émission des GES
Ce logement
≤5A
6 à 10B
11 à 20C
21 à 35D
36 à 55E
56 à 80F
81 à 110G
111 à 145H
>145I
B
KgeqCO2/m2.an
Forte émission des GES
 
*Prix TTC donnés à titre indicatif

Demande d'information sur l'annonce

Je souhaite être recontacté à propos de l'annonce ARCHANGE_57045

Informations complémentaires (indiquez ici vos disponibilités)

Les informations recueillies à partir de ce formulaire sont transmises par email à nos conseillers qui utiliseront ces données pour vous recontacter dans le cadre de votre demande. Les champs obligatoires sont signalés par des *. Vous disposez d’un droit d’accès, de rectification et d’opposition aux données vous concernant que vous pouvez exercer en nous contactant par courrier à : MC&A 1 chemin du Torey 69340 Francheville. Politique de protection des données personnelles