Rare ! T3 Dardilly centre 71 m² avec terrasse 11m² - le coin des annonces immobilières sur MonLogementNeuf.com

Rare ! T3 Dardilly centre 71 m² avec terrasse 11m² - 359 851€*

Annonce parue le : 13-12-2022

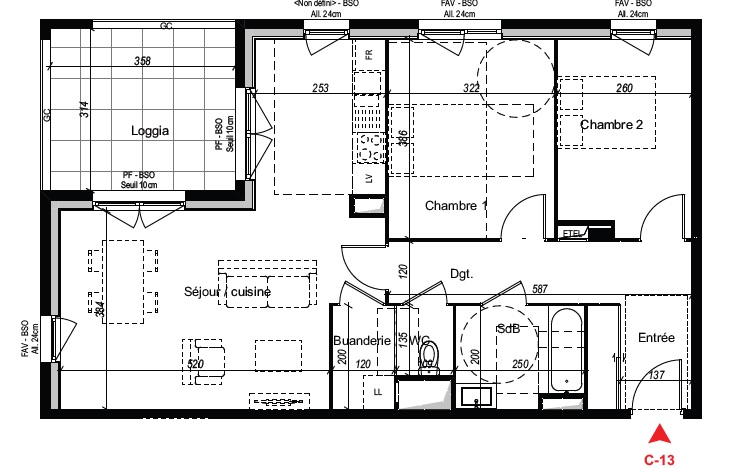
Coup de coeur MCA Patrimoine Francheville ! Dardilly CENTRE VILLAGE, à proximité des commerces, des écoles et de la gare, bel appartement de type 3 au 1ème étage d'une résidence avec ascenseur. Il se compose d'une cuisine ouvrant sur un séjour lumineux 2 chambres avec placards, salle de bains, WC séparé, buanderie. L'appartement s'accompagne d'une très belle terrasse de 11m². Possibilité garage en sus. Pour tout renseignement contacter Arthur DA SILVA au 06 07 85 32 90

Ville :
Dardilly

Appartement
Dardilly - CENTRE VILLAGE

359 851€*
  • Etage : 1
  • Nombre de pièce(s) : 3 pièce(s)
  • Surface : 71.8 m²
  • Balcon/Terrasse/Jardin : 11 m²

Le secteur

Diagnostic énergétique

Très économe
Ce logement
≤50A
51 à 90B
91 à 150C
151 à 230D
231 à 330E
331 à 450F
451 à 590G
591 à 750H
>751I
B
kWh/m2.an
Très énergivore
 
Faible émission des GES
Ce logement
≤5A
6 à 10B
11 à 20C
21 à 35D
36 à 55E
56 à 80F
81 à 110G
111 à 145H
>145I
B
KgeqCO2/m2.an
Forte émission des GES
 
*Prix TTC donnés à titre indicatif

Demande d'information sur l'annonce

Je souhaite être recontacté à propos de l'annonce Arthur_55618

Informations complémentaires (indiquez ici vos disponibilités)

Les informations recueillies à partir de ce formulaire sont transmises par email à nos conseillers qui utiliseront ces données pour vous recontacter dans le cadre de votre demande. Les champs obligatoires sont signalés par des *. Vous disposez d’un droit d’accès, de rectification et d’opposition aux données vous concernant que vous pouvez exercer en nous contactant par courrier à : MC&A 1 chemin du Torey 69340 Francheville. Politique de protection des données personnelles