Rare T3 de standing de 54m² à Clermont Ferrand - le coin des annonces immobilières sur MonLogementNeuf.com

Rare T3 de standing de 54m² à Clermont Ferrand - 298 500€*

Annonce parue le : 20-03-2023

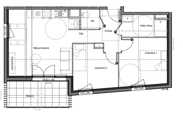
Clermont-Ferrand Proche centre-ville, à proximité des commerces, des écoles et de la gare, bel appartement de 53.4m² de type 3 au 6ème étage de d'une résidence avec ascenseur. Il se compose d'un séjour lumineux qui communique avec une cuisine ouverte, 2 chambres, une salle de bains, WC séparé, L'appartement s'accompagne d'une belle terrasse de 7m² Ideal Résidence principale ou investissement locatif. Pour tout renseignement contacter Arthur DA SILVA

Appartement
Clermont-Ferrand - Proche centre-ville

298 500€*
  • Etage : 6
  • Nombre de pièce(s) : 3 pièce(s)
  • Surface : 53.4 m²
  • Balcon/Terrasse/Jardin : 0 m²

Le secteur

Diagnostic énergétique

Très économe
Ce logement
≤50A
51 à 90B
91 à 150C
151 à 230D
231 à 330E
331 à 450F
451 à 590G
591 à 750H
>751I
B
kWh/m2.an
Très énergivore
 
Faible émission des GES
Ce logement
≤5A
6 à 10B
11 à 20C
21 à 35D
36 à 55E
56 à 80F
81 à 110G
111 à 145H
>145I
B
KgeqCO2/m2.an
Forte émission des GES
 
*Prix TTC donnés à titre indicatif

Demande d'information sur l'annonce

Je souhaite être recontacté à propos de l'annonce Arthur_49890

Informations complémentaires (indiquez ici vos disponibilités)

Les informations recueillies à partir de ce formulaire sont transmises par email à nos conseillers qui utiliseront ces données pour vous recontacter dans le cadre de votre demande. Les champs obligatoires sont signalés par des *. Vous disposez d’un droit d’accès, de rectification et d’opposition aux données vous concernant que vous pouvez exercer en nous contactant par courrier à : MC&A 1 chemin du Torey 69340 Francheville. Politique de protection des données personnelles