St Priest, 2 pieces 39m² de standing avec jardin 33 m² - le coin des annonces immobilières sur MonLogementNeuf.com

St Priest, 2 pieces 39m² de standing avec jardin 33 m² - 241 900€*

Annonce parue le : 20-03-2023

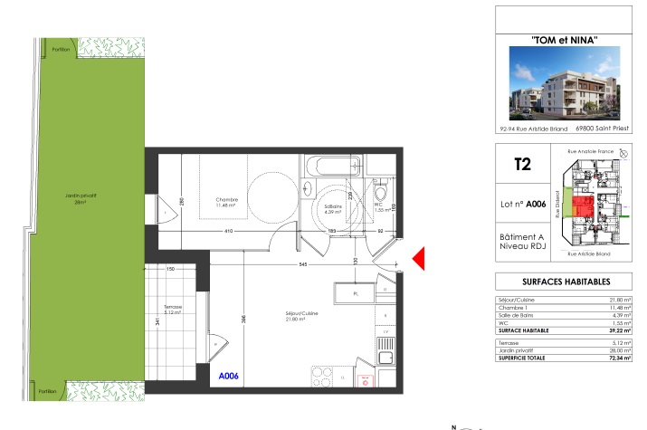
Rare ! Saint Priest - Dans copropriété de standing sécurisée , découvrez cet appartement de type T2 de 39 m² . Au RDC et profitant d'une belle luminosité, ce bien se compose d'une pièce de vie spacieuse comprenant un séjour et une cuisine ouverte , ainsi que des rangements. 1 chambre, une salle de bain et un WC . une terrasse de 5 m² sur un jardin de 28 m² Emplacement d'exception, à proximité immédiate des commerces et des transports en commun. Le bien est vendu avec 1 place de parking privative dans la copropriété Particulier ou investisseur, vous pouvez contacter Arthur DA SILVA au 06 07 85 32 90

Appartement
Saint Priest -

241 900€*
  • Etage : RDC
  • Nombre de pièce(s) : 2 pièce(s)
  • Surface : 39 m²
  • Balcon/Terrasse/Jardin : 33 m²

Le secteur

Diagnostic énergétique

Très économe
Ce logement
≤50A
51 à 90B
91 à 150C
151 à 230D
231 à 330E
331 à 450F
451 à 590G
591 à 750H
>751I
B
kWh/m2.an
Très énergivore
 
Faible émission des GES
Ce logement
≤5A
6 à 10B
11 à 20C
21 à 35D
36 à 55E
56 à 80F
81 à 110G
111 à 145H
>145I
B
KgeqCO2/m2.an
Forte émission des GES
 
*Prix TTC donnés à titre indicatif

Demande d'information sur l'annonce

Je souhaite être recontacté à propos de l'annonce Arthur_54353

Informations complémentaires (indiquez ici vos disponibilités)

Les informations recueillies à partir de ce formulaire sont transmises par email à nos conseillers qui utiliseront ces données pour vous recontacter dans le cadre de votre demande. Les champs obligatoires sont signalés par des *. Vous disposez d’un droit d’accès, de rectification et d’opposition aux données vous concernant que vous pouvez exercer en nous contactant par courrier à : MC&A 1 chemin du Torey 69340 Francheville. Politique de protection des données personnelles