Vancia T4 au 2ème et dernier étage - le coin des annonces immobilières sur MonLogementNeuf.com

Vancia T4 au 2ème et dernier étage - 373 000€*

Annonce parue le : 09-10-2023

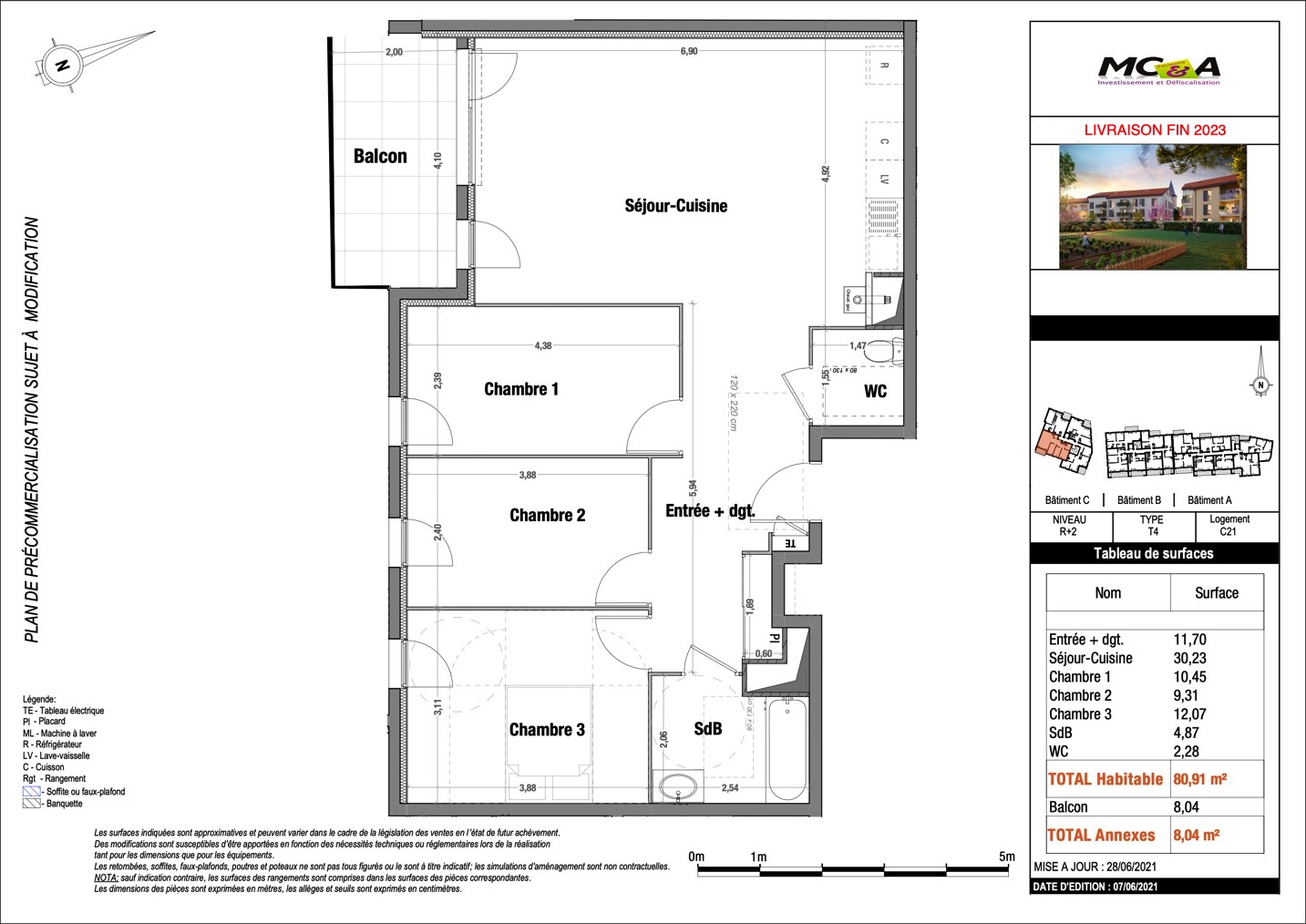
Rillieux - Vancia Centre, Rare T4 de 81 M2 situé au 2ème et dernier étage de cette résidence verdoyante. Composé de 3 chambres, une salle de bain entièrement équipée et un lumineux séjour cuisine US de plus de 30 M2 bénéficiant d'un accès au large balcon de 8 M2 exposé Sud. Résidence entièrement clôturé et sécurisé et parkings en sous-sol. Proche des commerces, micro crèche, école primaire, à 3 minutes de l'Autoroute A 46, bus TCL à 2 pas de la résidence. 2 places de parkings en sous sol inclus au prix. Contactez Archange BARLET.

Appartement
Rillieux la Pape - Vancia

373 000€*
  • Etage : 2
  • Nombre de pièce(s) : 4 pièce(s)
  • Surface : 80 m²
  • Balcon/Terrasse/Jardin : 0 m²

Le secteur

Diagnostic énergétique

Très économe
Ce logement
≤50A
51 à 90B
91 à 150C
151 à 230D
231 à 330E
331 à 450F
451 à 590G
591 à 750H
>751I
B
kWh/m2.an
Très énergivore
 
Faible émission des GES
Ce logement
≤5A
6 à 10B
11 à 20C
21 à 35D
36 à 55E
56 à 80F
81 à 110G
111 à 145H
>145I
B
KgeqCO2/m2.an
Forte émission des GES
 
*Prix TTC donnés à titre indicatif

Demande d'information sur l'annonce

Je souhaite être recontacté à propos de l'annonce ARCHANGE_50553

Informations complémentaires (indiquez ici vos disponibilités)

Les informations recueillies à partir de ce formulaire sont transmises par email à nos conseillers qui utiliseront ces données pour vous recontacter dans le cadre de votre demande. Les champs obligatoires sont signalés par des *. Vous disposez d’un droit d’accès, de rectification et d’opposition aux données vous concernant que vous pouvez exercer en nous contactant par courrier à : MC&A 1 chemin du Torey 69340 Francheville. Politique de protection des données personnelles