Vente Appartement 3 pièces à Le Pont-de-Claix | Programme neuf Le Pont-de-Claix : Programme cour d'o - MonLogementNeuf.com, tout l'immobilier sur le 38
Photos non contractuelles
Eligible :
Loi Pinel Prêt à taux zéro (PTZ+)
Trop d'impôts ?
Vérifiez votre éligibilité Pinel
Immédiat, gratuit, confidentiel, sans engagement, et adapté à votre situation familiale, fiscale et patrimoniale
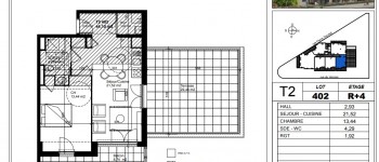
Appartement 3 pièces à Le Pont-de-Claix (38800) - Quartier
- Surface : 56,93m²
- Etage : 3
- Terrasse/Balcon/Jardin : Non
- Livraison 2024
- Programme BBC
- Au sud de Grenoble, Pont-de-Claix se niche entre le massif du Vercors et la chaine de Belledonne
- A 20 minutes du centre de Grenoble
- Stations de ski toutes proches
- Une ville connectée bénéficiant d'une situation stratégique dans la métropole Grenobloise
Résidences et appartements neufs à proximité de Le Pont-de-Claix (38800)

38640 Claix
Quartier :

38130 Échirolles
Quartier : Résidentiel
Nouveau ! Ici, prenez RDV en visio !


"
C’est une question intéressante — à l’heure actuelle, rien n’est encore certain qu’un « statut..."