Joli duplex de 114m² proche de Lyon ! - le coin des annonces immobilières sur MonLogementNeuf.com

Joli duplex de 114m² proche de Lyon ! - 531 000€*

Annonce parue le : 16-03-2023

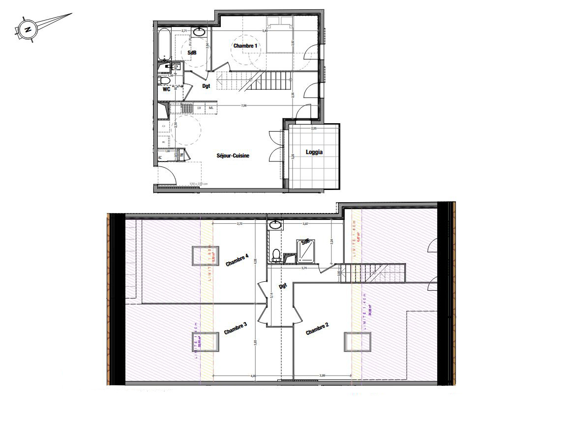
Votre agence MCA Patrimoine de Francheville vous propose ce bien situé sur la commune de Rillieux-la-Pape dans une résidence très bien située à 30 minutes à peine de la cité internationale. Transports et commerces à quelques minutes. Nous vous proposons cet appartement de 5 pièces en duplex. Vous trouverez au rez-de-chaussée un très joli séjour + cuisine de 33m² avec accès à la petite loggia de 8m², une première chambre de 14m² ainsi qu'une salle de bain et des WC. Ce sont 3 nouvelles chambres et une salle d'eau avec WC qui vous attendrons à l'étage. Pas de travaux à prévoir ! Deux places de parking en sus. Contactez MCA Patrimoine au 04 78 14 03 90. (Référence à rappeler 50554)

Appartement Duplex
Rillieux la Pape - Vancia

531 000€*
  • Etage : 2
  • Nombre de pièce(s) : 5 pièce(s)
  • Surface : 114 m²
  • Balcon/Terrasse/Jardin : 8 m²

Le secteur

Diagnostic énergétique

Très économe
Ce logement
≤50A
51 à 90B
91 à 150C
151 à 230D
231 à 330E
331 à 450F
451 à 590G
591 à 750H
>751I
B
kWh/m2.an
Très énergivore
 
Faible émission des GES
Ce logement
≤5A
6 à 10B
11 à 20C
21 à 35D
36 à 55E
56 à 80F
81 à 110G
111 à 145H
>145I
B
KgeqCO2/m2.an
Forte émission des GES
 
*Prix TTC donnés à titre indicatif

Demande d'information sur l'annonce

Je souhaite être recontacté à propos de l'annonce WEBMASTER_50554

Informations complémentaires (indiquez ici vos disponibilités)

Les informations recueillies à partir de ce formulaire sont transmises par email à nos conseillers qui utiliseront ces données pour vous recontacter dans le cadre de votre demande. Les champs obligatoires sont signalés par des *. Vous disposez d’un droit d’accès, de rectification et d’opposition aux données vous concernant que vous pouvez exercer en nous contactant par courrier à : MC&A 1 chemin du Torey 69340 Francheville. Politique de protection des données personnelles